幻想的でスタイリッシュな新築シンプル オープン外構

プラン内容 No.1823

※データは見積当時のものです

見積参考価格
635 万円
工事面積
277m 2
工事種別
新築外構
地形
四角
方位
西
車の台数
2台
登録日
2022-10-04

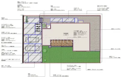
イメージパース・図面

コメント

広々とした駐車スペースにスタイリッシュなカーポート LIXIL カーポートSC 横2台用(ワイド)を配置し、隣にサイクルポート カーポートSC ミニを施工しました。サイクルポートとカーポートを同じタイプで纏める事で統一感を演出できます。玄関アプローチ階段を浮き階段を採用しライン照明を施工する事で幻想的で高級感のあるアプローチ階段となります。