赤い機能門柱が印象的な新築ベーシック オープン外構
プラン内容 No.2975
※データは見積当時のものです
- 見積参考価格
- 295 万円
- 工事面積
- 111m 2
- 工事種別
- 新築外構
- 地形
- 旗竿地
- 方位
- 北
- 登録日
- 2025-04-15
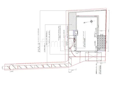
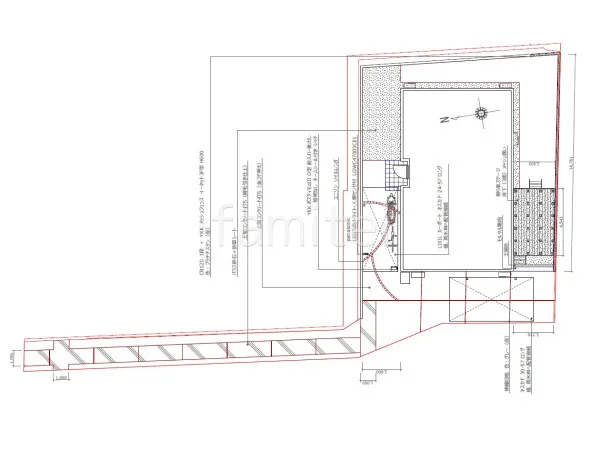
イメージパース・図面







コメント
駐車スペースに1台用カーポート LIXIL ネスカFを2基設置し、雨や日差しから車をしっかり保護します。 玄関まわりに赤い機能門柱 YKKAP ポスティモαIII D型を採用し、住まいの顔としての印象を高めました。 また、お庭には耐久性の高い人工木ウッドデッキ LIXIL 樹ら楽ステージを設置し、家族でくつろげる憩いの空間を作りました。







