スタイリッシュなカーポートと木調スクリーンで新築シンプル セミクローズ外構
プラン内容 No.3057
※データは見積当時のものです
- 見積参考価格
- 447 万円
- 工事面積
- 112m 2
- 工事種別
- 新築外構
- 地形
- 四角
- 方位
- 南
- 車の台数
- 2台
- 登録日
- 2025-06-15
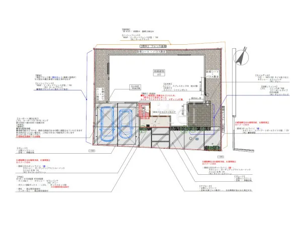
イメージパース・図面






コメント
駐車スペースにスタイリッシュなデザインの2台用カーポート LIXIL カーポートSCを設置し、車を雨や紫外線からしっかりと守ります。 また、門まわりには大判タイル タカショー セラレバンテのタイル門柱を採用し、重厚感と高級感を演出。 お庭スペースには同種タイルを使用したタイルデッキを設け、統一感のある美しい屋外空間に仕上げました。 デッキ周囲には目隠しスクリーン LIXIL 木製調フェンスAR-TH型を配置し、プライバシーを確保しました。






