タイル門柱とカーポートがモダンな新築シンプル オープン外構

プラン内容 No.3171

※データは見積当時のものです

見積参考価格
554 万円
工事面積
125m 2
工事種別
新築外構
地形
四角
方位
車の台数
2台
登録日
2022-03-21

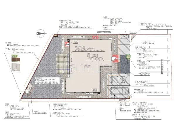
イメージパース・図面

コメント

2台用カーポート LIXIL カーポートSCを設置し、スタイリッシュで機能的な駐車スペースを確保しました。 アプローチには黒い乱形石を採用し、重厚感と高級感を演出します。 門まわりには大判タイル タカショー セラウォールのタイル門柱を設置し、上質な印象をプラスしました。 お庭には300角タイル LIXIL グレイスランドを貼り仕上げたタイルデッキを設け、家族が集う憩いの場として快適なアウトドアリビングスペースを作りました。 さらに、目隠しフェンス LIXIL 木製調AB YS3型を使用し、プライバシーを守りながら温かみのある雰囲気を添えています。