兵庫店
お気に入り
メニュー
0120-644-128
10:00~18:00 水・木 定休日
お問い合せ
単価一覧
お気に入り
店舗紹介
施工エリア
施工例
プラン事例
お客様の声
店舗一覧
工事の流れ
プラン詳細
プラン内容
No.1106
※データは見積当時のものです
見積参考価格
211
万円
工事面積
145m
2
工事種別
リフォーム外構
地形
四角
車の台数
3台以上
登録日
2012-11-22
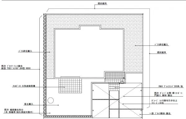
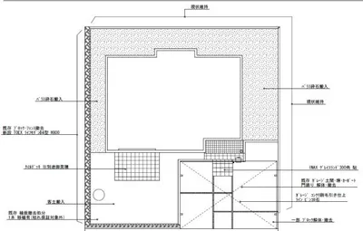
イメージパース・図面
1/6
高台オープン外構リフォーム
2/6
3台用カーポート
3/6
立面図
4/6
平面図
5/6
詳細見積
6/6
リフォーム前
このプランの分類
外まわり
オープン
車庫まわり
門まわり
ベーシック
このプランについて問い合わせる