木製調を合わせることで素敵な新築和モダン オープン外構
プラン内容 No.1690
※データは見積当時のものです
- 見積参考価格
- 346 万円
- 工事面積
- 87m 2
- 工事種別
- 新築外構
- 地形
- 角地
- 方位
- 南
- 車の台数
- 1台
- 登録日
- 2023-01-27
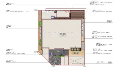
イメージパース・図面






コメント
玄関アプローチは黒色の乱形石を敷き、シックな仕上がりに。木製調の目隠しフェンス LIXILプログコートM1型や、カーポート LIXIL カーポートSCも相まって、和モダンな雰囲気を醸し出しています。お庭には人工木ウッドデッキ LIXIL 樹ら楽ステージを設置し、目隠しフェンスF&Fマイティウッドデコも合わせることで、プライバシーを確保した使いやすいお庭になりました。






