和の雰囲気を感じる 新築和モダン オープン外構
プラン内容 No.1796
※データは見積当時のものです
- 見積参考価格
- 234 万円
- 工事面積
- 82m 2
- 工事種別
- 新築外構
- 地形
- 角地
- 方位
- 西
- 車の台数
- 2台
- 登録日
- 2022-10-17
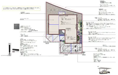
イメージパース・図面






コメント
シックで重厚感を感じる門柱に 壁タイル張り タカショー セラレバンテを使用。郵便受けポストや宅配ボックスなどもブラック色で統一しています。カーポートにLIXIL ネスカF 1.5台用(1台+延長)を施工しました。お庭の飛び石 ユニソン ワズプレート 600×300や落葉樹 カエデなど和を感じるお庭です。目隠しのF&F マイティウッドデコIIで外からの視線を遮りました。






