さわやかな車庫まわりリフォーム
プラン内容 No.1802
※データは見積当時のものです
- 見積参考価格
- 137 万円
- 工事面積
- 108m 2
- 工事種別
- リフォーム外構
- 地形
- 四角
- 方位
- 西
- 車の台数
- 2台
- 登録日
- 2022-10-14
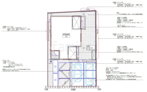
イメージパース・図面






コメント
駐車スペースにカーポート YKKAP アリュースツイン を施工しました。また、駐車スペースとアプローチの間土間コンクリートを施工し1台分の駐車スペースを配置しました。お庭などのプライバシー確保にF&F マイティウッド デコIIを施工しました。木製調の温もりが感じる目隠しフェンスです。






