石積み風門柱がおしゃれなリフォームナチュラル セミクローズ外構
プラン内容 No.1833
※データは見積当時のものです
- 見積参考価格
- 734 万円
- 工事面積
- 200m 2
- 工事種別
- リフォーム外構
- 地形
- 四角
- 方位
- 南
- 車の台数
- 3台以上
- 登録日
- 2022-08-29
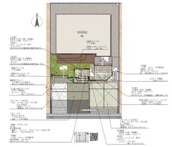
イメージパース・図面






コメント
門柱のタイルはユニソン パイルストーン。天然石でできたタイルで、貼るだけで石を積んだかのようなナチュラルな仕上がりになります。駐車場スペースにはLIXIL カーポートSCを設置。アルミ屋根材なので太陽の光を通さず、屋根下から見ても汚れが目立ちません。






