土間コンクリートの新築ベーシック オープン外構
プラン内容 No.1857
※データは見積当時のものです
- 見積参考価格
- 81 万円
- 工事面積
- 41m 2
- 工事種別
- 新築外構
- 地形
- 変形
- 方位
- 南西
- 車の台数
- 1台
- 登録日
- 2022-08-16
イメージパース・図面






コメント
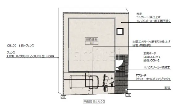
玄関アプローチのタイルはタカショー セラレバンテ。大判で石目調が美しいタイルです。黒色がシャープな印象になります。駐車場スペースや犬走り部分には土間コンクリートを敷き、快適性と雑草の防止を行っています。
※データは見積当時のものです






玄関アプローチのタイルはタカショー セラレバンテ。大判で石目調が美しいタイルです。黒色がシャープな印象になります。駐車場スペースや犬走り部分には土間コンクリートを敷き、快適性と雑草の防止を行っています。