温かみを感じる新築ナチュラル セミクローズ外構
プラン内容 No.1902
※データは見積当時のものです
- 見積参考価格
- 108 万円
- 工事種別
- 新築外構
- 地形
- 変形
- 方位
- 南
- 登録日
- 2022-09-04
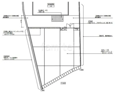
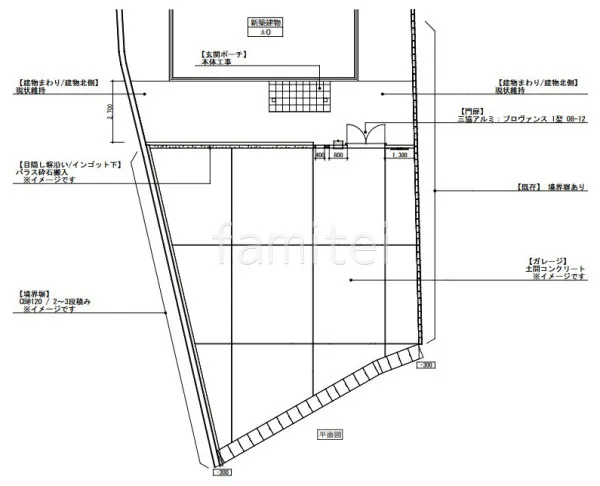
イメージパース・図面





コメント
エスケー化研のベルアート塗装を使用した塗り壁門柱と塗り壁門袖が特徴的です。塗り壁は、耐久性と美観を兼ね備えたベルアート塗装を採用し、高級感あふれる外観を実現しています。また、門袖にはオンリーワン Gプレートガラス柱 を使用し、独特の風格を演出しています。門柱側にタカショーのレターバーライトを設置。夜間でも明るく、訪れる人々を暖かく迎え入れます。門袖側にYKKAPの郵便受けポスト エクステリアポストG3型を施工。機能性とデザイン性を兼ね備え日々の暮らしを豊かにします。





