新築ベーシック オープン外構
プラン内容 No.1919
※データは見積当時のものです
- 見積参考価格
- 166 万円
- 工事面積
- 82m 2
- 工事種別
- 新築外構
- 地形
- 変形
- 方位
- 南東
- 車の台数
- 2台
- 登録日
- 2022-07-24
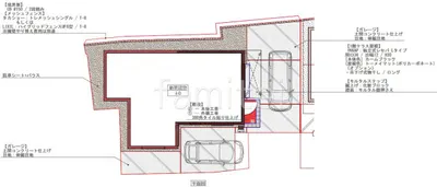
イメージパース・図面





コメント
宅配ボックス門柱 パナソニックのアーキーフレームFが設置されています。宅配ボックスで不在時や対応出来ない際、宅配の受け取りが可能になり非常に便利です。境界にはタカショーのフェンス塀 トレメッシュシングルを使用しました。プライバシーを保ちつつ開放感があります。駐車場ガレージの床は土間コンクリートで施工。伸縮目地が施しひび割れを防ぎます。1階のテラスにはYKKAP 独立式レセパLタイプのテラス屋根があり、雨天でも快適に過ごすことができます。さらに、テラス屋根の下にモルタルステップが設けられており、掃き出し窓からお車への荷物の移動などにも使用できます。





