オーソドックスで使いやすいリフォームベーシック オープン外構
プラン内容 No.1948
※データは見積当時のものです
- 見積参考価格
- 257 万円
- 工事面積
- 145m 2
- 工事種別
- リフォーム外構
- 方位
- 北
- 車の台数
- 2台
- 登録日
- 2022-06-25
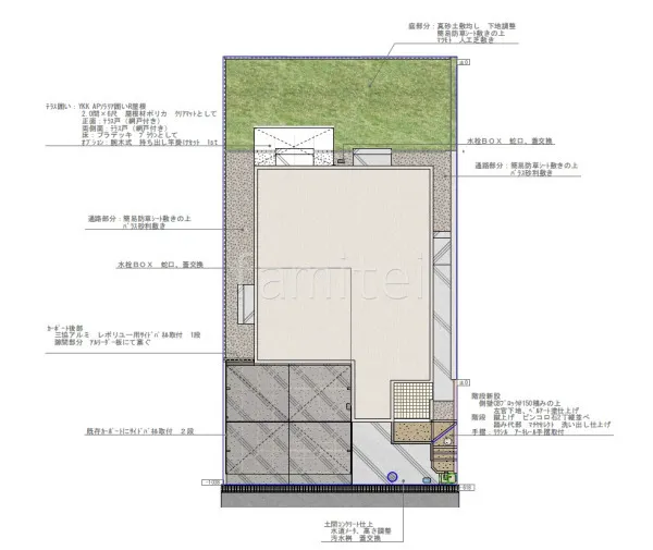
イメージパース・図面






コメント
機能門柱はLIXIL アクシィ1型。玄関機能がまとまっており、使いやすい門柱です。アプローチ階段には手すり LIXIL アーキレールを設置し、上り下りしやすくなっています。お庭にはサンルーム YKKAP ソラリアRを設置。雨の予報の日でも安心して洗濯物を干すことが出来ます。






