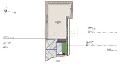
タイル門柱と乱形石アプローチが特徴的な新築シンプル クローズ外構
プラン内容 No.1987
※データは見積当時のものです
- 見積参考価格
- 160 万円
- 工事面積
- 44m 2
- 工事種別
- 新築外構
- 地形
- 変形
- 方位
- 東
- 車の台数
- 1台
- 登録日
- 2022-06-02
イメージパース・図面






コメント
門柱のタイルはLIXIL 細割ボーダー。細身のタイルがスマートに清潔感ある門まわりを演出します。宅配ボックス機能付きのポスト、ユニソン ヴィコDB100で不在時でも荷物を受け取る事が出来ます。玄関門扉 LIXIL 木製調AB ウッディYS1型 親子両開きや乱形石アプローチで自然な印象も与えます。






