ガレージシャッターと目隠しフェンスでクローズにした門まわりリフォーム
プラン内容 No.2366
※データは見積当時のものです
- 見積参考価格
- 402 万円
- 工事種別
- リフォーム外構
- 地形
- 四角
- 車の台数
- 2台
- 登録日
- 2024-02-24
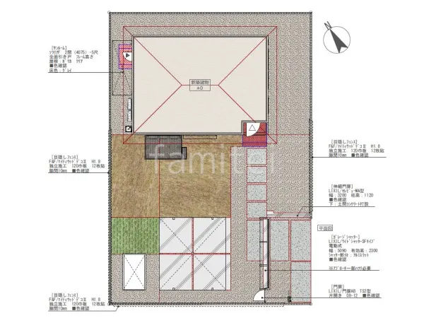
イメージパース・図面







コメント
ガレージシャッターLIXIL シャッターS Fタイプ 電動式を設置することで車を安全に保護し、セキュリティを強化します。 シャッターの横には伸縮ゲートLIXIL セレビューMA型を設置してクローズにしながらも玄関からの出入りをスムーズにします。 更に敷地境界を目隠しフェンス F&F マイティウッドデコllで囲むことでプライバシーを確保します。 家の裏側にサンルーム YKKAP ソラリアFを設置して雨天も気にせず洗濯物を干すことができます。







