タイル門柱とロックガーデンがおしゃれな新築ベーシック オープン外構
プラン内容 No.2458
※データは見積当時のものです
- 見積参考価格
- 176 万円
- 工事面積
- 108m 2
- 工事種別
- 新築外構
- 地形
- 四角
- 方位
- 東
- 登録日
- 2024-05-31
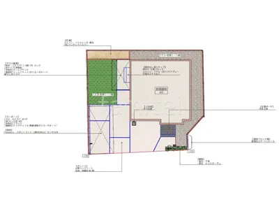
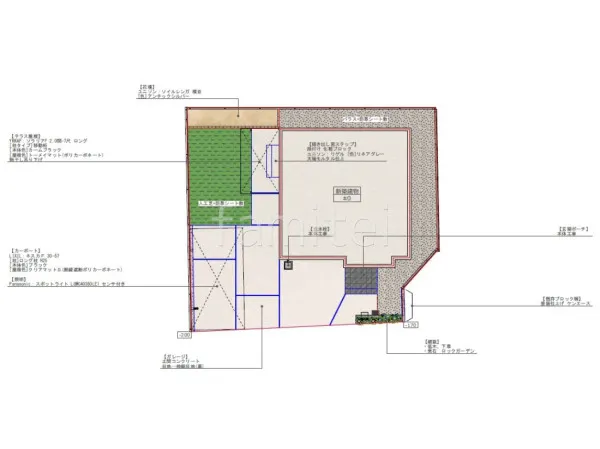
イメージパース・図面







コメント
門柱は大判タイル タカショー セラレバンテで仕上げてモダンな印象を加えます。 門柱の周りにはロックガーデンを作って自然の景観もプラスし、高級感のあるエントランスになりました。 駐車場には1台用カーポート LIXIL ネスカFを設置して車を雨風から守ります。 お庭には人工芝を敷き、1Fテラス屋根 YKKAP ソラリアFを設置し、天候に左右されず1年中美しい緑を楽しめるお庭にしました。







