トレンドの機能門柱でスタイリッシュな新築シンプル オープン外構
プラン内容 No.2570
※データは見積当時のものです
- 見積参考価格
- 125 万円
- 工事面積
- 45m 2
- 工事種別
- 新築外構
- 地形
- 四角
- 方位
- 東
- 車の台数
- 1台
- 登録日
- 2024-08-20
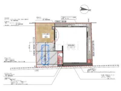
イメージパース・図面






コメント
玄関先の門柱はトレンドの宅配ボックス門柱 LIXIL FTを採用し、利便性をアップしました。 アプローチは黒の乱形石を使用し、高級感のある雰囲気に仕上げました。 またロックガーデンを取り入れることで、自然を楽しむ空間を作りました。 お庭には立水栓 ユニソン スプレスタンド60 蛇口2個付きを設置し、日常の使い勝手の良いスペースにしました。






