3台用カーポートが開放感のある新築ベーシック オープン外構
プラン内容 No.2702
※データは見積当時のものです
- 見積参考価格
- 358 万円
- 工事面積
- 166m 2
- 工事種別
- 新築外構
- 地形
- 四角
- 方位
- 南
- 車の台数
- 3台以上
- 登録日
- 2024-11-16
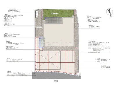
イメージパース・図面








コメント
駐車スペースに3台用カーポート YKKAP エフルージュを設置し、雨や紫外線から車をしっかり保護します。 また、シンプルなデザインの機能門柱 三協アルミ スリムモダンを設置することで、機能性を向上しました。 お庭には実用的な物置 イナバ シンプリーMJX-217Eを設置し、収納スペースを確保しました。 さらに、タイルデッキを設置し、人工芝を敷くことで家族や友人と過ごすアウトドアスペースに仕上げました。








