カーポートと目隠しフェンスでオーソドックスな新築ベーシック オープン外構
プラン内容 No.2766
※データは見積当時のものです
- 見積参考価格
- 271 万円
- 工事面積
- 115m 2
- 工事種別
- 新築外構
- 地形
- 四角
- 方位
- 南
- 車の台数
- 3台以上
- 登録日
- 2024-12-21
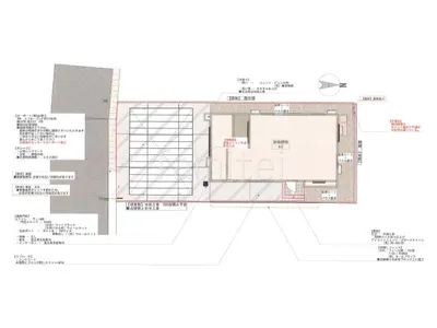
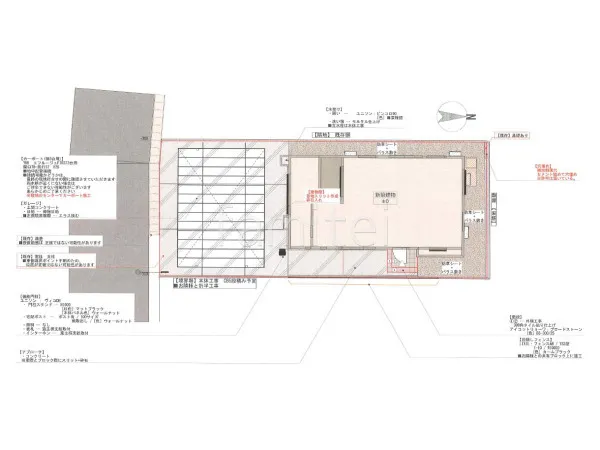
イメージパース・図面






コメント
駐車場に3台用カーポート YKKAP エフルージュFIRSTを設置し、広々とした駐車スペースを確保し、車を雨風から保護します。 門柱は宅配ボックス付き機能門柱 ユニソン ヴィコDBを採用し、不在時でも安心して荷物の受け取りが可能になります。 アプローチ部分の境界には目隠しフェンス LIXIL AB YS3型を設置することで、プライバシーをしっかりと守ります。






