天然芝をやり替えて綺麗に整えたお庭リフォーム
プラン内容 No.2855
※データは見積当時のものです
- 見積参考価格
- 157 万円
- 工事種別
- リフォーム外構
- 登録日
- 2025-02-08
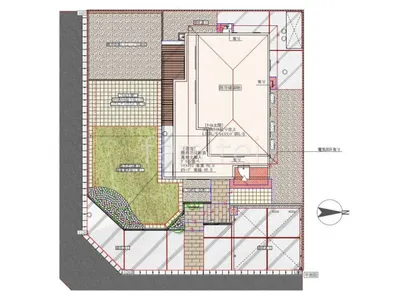
イメージパース・図面






コメント
既存防草シートの上に砂利を敷くことで、雑草を抑えつつ、スッキリとした仕上がりに。 また、お庭の既存の天然芝を剥がし、新たな天然芝にやり替えることで、美しく整った緑が復活し、庭全体の印象が一新されます。 さらに、お庭の一部を300角タイル LIXIL グレイスランドを貼り仕上げ、耐久性の高く、すっきりとした印象にしました。






