花壇を解体して駐車スペースを作った外構リフォーム
プラン内容 No.3034
※データは見積当時のものです
- 見積参考価格
- 49 万円
- 工事面積
- 12m 2
- 工事種別
- リフォーム外構
- 地形
- 四角
- 方位
- 南
- 車の台数
- 1台
- 登録日
- 2025-05-09
イメージパース・図面





コメント
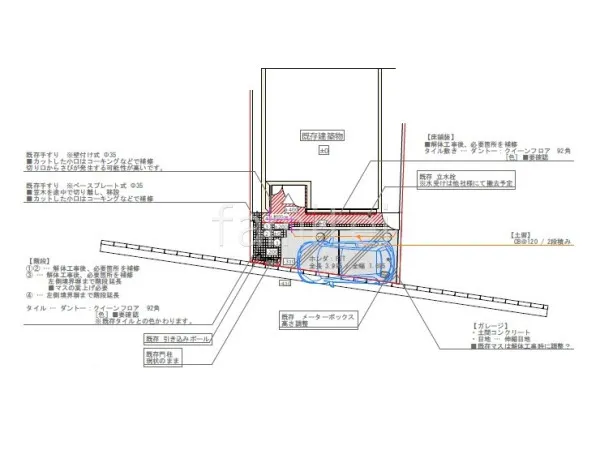
既存の花壇・土留め・階段の一部を解体し、整地したスペースに新たに土間コンクリート仕上げで駐車スペースへとリフォームしました。 階段の一部はタイル ダントー クイーンフロアで補修し、美しい見た目に復旧しました。
※データは見積当時のものです





既存の花壇・土留め・階段の一部を解体し、整地したスペースに新たに土間コンクリート仕上げで駐車スペースへとリフォームしました。 階段の一部はタイル ダントー クイーンフロアで補修し、美しい見た目に復旧しました。