乱形石と角柱門柱が温かみのある新築ナチュラル オープン外構
プラン内容 No.3047
※データは見積当時のものです
- 見積参考価格
- 290 万円
- 工事面積
- 140m 2
- 工事種別
- 新築外構
- 地形
- 四角
- 方位
- 北東
- 車の台数
- 3台以上
- 登録日
- 2025-06-24
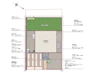
イメージパース・図面






コメント
黄色い乱形石を使用したアプローチが、明るく温かみのある印象をプラスします。 また、角柱門柱を設置することで、コンパクトながらも機能性の高い玄関まわりに仕上げました。 さらに、片開き門扉 LIXIL AB YR2型を設けることで防犯性を向上しました。 お庭にはお手入れが簡単な人工芝を敷き、隠しフェンス LIXIL AB YS3型を設置することで、プライバシーを確保しながらも開放感のある快適な屋外空間を作りました。






