梁延長カーポートを組み合わせて利便性の高い車庫まわりリフォーム
プラン内容 No.3105
※データは見積当時のものです
- 見積参考価格
- 310 万円
- 工事種別
- リフォーム外構
- 車の台数
- 3台以上
- 登録日
- 2024-10-27
イメージパース・図面






コメント
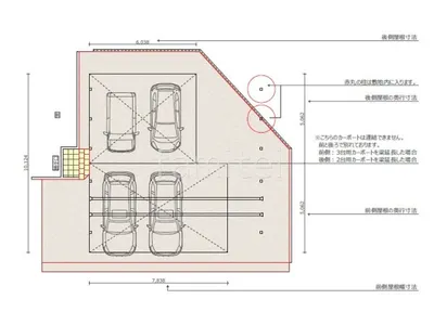
既存のカーポートを撤去し、2台用カーポートと3台用カーポート YKKAP エフルージュFIRSTの梁延長タイプを前後に組み合わせ、広々とした駐車スペースを確保しつつ、車の出入りをスムーズに行える空間に仕上げました。
※データは見積当時のものです






既存のカーポートを撤去し、2台用カーポートと3台用カーポート YKKAP エフルージュFIRSTの梁延長タイプを前後に組み合わせ、広々とした駐車スペースを確保しつつ、車の出入りをスムーズに行える空間に仕上げました。