白の乱形石が明るい印象の新築シンプル オープン外構
プラン内容 No.3172
※データは見積当時のものです
- 見積参考価格
- 340 万円
- 工事面積
- 65m 2
- 工事種別
- 新築外構
- 地形
- 四角
- 方位
- 北
- 車の台数
- 2台
- 登録日
- 2022-03-21
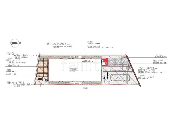
イメージパース・図面







コメント
白い乱形石を敷いたアプローチは、明るく爽やかな印象を与え、大判タイル タカショー セラウォールを貼り仕上げたタイル門柱と組み合わせることで、上質で洗練された雰囲気を演出します。 駐車スペースには1.5台用カーポート LIXIL ネスカFを採用し、車や自転車を収められる機能性を確保しました。 お庭にはウッドデッキ 三協アルミ ラステラを設け、家族が集う憩いの場やアウトドアリビングとして活用できる快適な空間を作りました。 さらに、目隠しフェンス F&F マイティウッドデコllを使用することで、プライバシーを守りながら木調の温かみを添えました。







