大きなカーポートで車を保護する車庫まわりリフォーム
プラン内容 No.3176
※データは見積当時のものです
- 見積参考価格
- 233 万円
- 工事面積
- 60m 2
- 工事種別
- リフォーム外構
- 方位
- 北西
- 車の台数
- 3台以上
- 登録日
- 2022-03-20
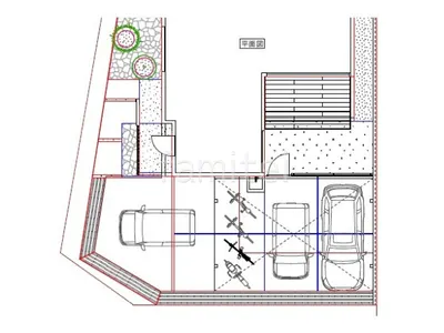
イメージパース・図面





コメント
駐車スペースの芝を撤去し、土間コンクリートを施工することで、雨の日でも足元が汚れにくく、車の出入りが快適な環境を整えました。 さらに、3台用カーポート YKKAP エフルージュFIRSTを設置し、複数台の車をしっかりとカバーできる広々とした駐車スペースを確保しました。 お庭スペースには目隠しフェンス LIXIL AB YS3型を採用し、プライバシーをしっかりと守ります。





