ブラックのカーポートがスタイリッシュな新築シンプル セミクローズ外構
プラン内容 No.3200
※データは見積当時のものです
- 見積参考価格
- 515 万円
- 工事面積
- 154m 2
- 工事種別
- 新築外構
- 地形
- 四角
- 方位
- 南
- 車の台数
- 3台以上
- 登録日
- 2025-07-29
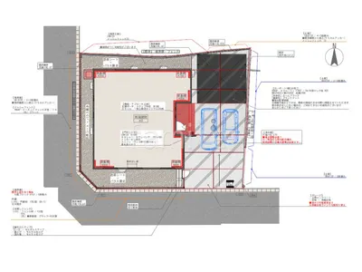
イメージパース・図面






コメント
敷地境界に化粧ブロック ユニソン アルタと目隠しフェンス LIXIL 木製調AB YS3-K型を組み合わせ、温かみのある質感と高いプライバシーを両立しました。 門まわりには重厚感のある大判タイル タカショー セラレバンテを使用したタイル門柱を採用し、高級感のある仕上がりに。 駐車スペースには2台用カーポート YKKAP エフルージュFIRSTを設け、ブラックポリカーボネートの屋根材を採用することで、スタイリッシュな印象をプラスしました。






