砂利敷きで雑草を抑える外構リフォーム
プラン内容 No.3201
※データは見積当時のものです
- 見積参考価格
- 46 万円
- 工事面積
- 21m 2
- 工事種別
- リフォーム外構
- 地形
- 角地
- 方位
- 北
- 車の台数
- 2台
- 登録日
- 2025-07-27
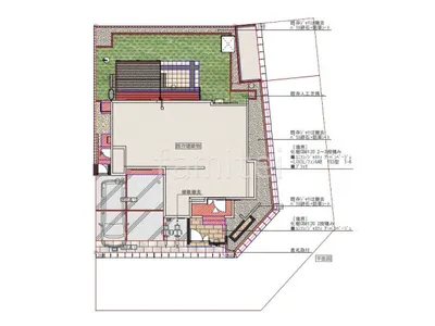
イメージパース・図面




コメント
既存花壇の植栽を撤去し、整地をした上に防草シートと砂利を敷くとで、雑草の発生をしっかり抑え、すっきりした見た目に整い、水はけの良さやメンテナンス性を向上しました。
※データは見積当時のものです




既存花壇の植栽を撤去し、整地をした上に防草シートと砂利を敷くとで、雑草の発生をしっかり抑え、すっきりした見た目に整い、水はけの良さやメンテナンス性を向上しました。