木調のフェンスと門柱が温かみのある新築ベーシック セミクローズ外構
プラン内容 No.3322
※データは見積当時のものです
- 見積参考価格
- 224 万円
- 工事面積
- 80m 2
- 工事種別
- 新築外構
- 地形
- 角地
- 方位
- 北
- 車の台数
- 2台
- 登録日
- 2025-08-09
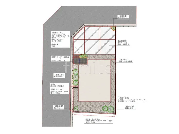
イメージパース・図面






コメント
玄関先に角柱門柱を設置し、コンパクトな外観で利便性の高いエントランスに仕上げました。 玄関階段にはには手すり LIXIL グリップラインを設置し、安全性を確保してどなたでも利用しやすくなりました。 境界には目隠しフェンス LIXIL AB YS3型、F&F ニコボードの二種を設けることで、プライバシーを守りながら木調で統一感のある外観に。 さらに、各所にシンボルツリーを植えることで、季節の変化を楽しめる景観を作りました。






