兵庫店
お気に入り
メニュー
0120-644-128
10:00~18:00 水・木 定休日
お問い合せ
単価一覧
お気に入り
店舗紹介
施工エリア
施工例
プラン事例
お客様の声
店舗一覧
工事の流れ
プラン詳細
プラン内容
No.908
※データは見積当時のものです
見積参考価格
132
万円
工事面積
153m
2
工事種別
新築外構
地形
四角
車の台数
2台
登録日
2011-06-20
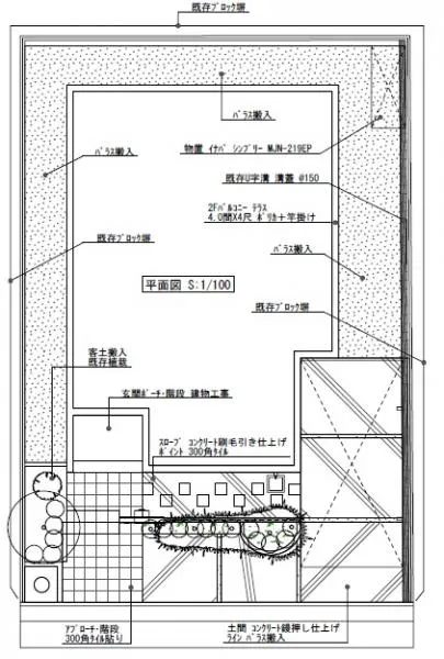
イメージパース・図面
1/6
2/6
3/6
4/6
立面図
5/6
平面図
6/6
工種別 参考価格
このプランの分類
オープン
和モダン
このプランについて問い合わせる